400-8818-755

如何确定串级试验变压器的容量和电压

阅读量:2790

  串级试验变压器有什么好处?

  串级试验变压器,体积小,重量轻,易于搬运及运输。对于高电压等级下的试验变压器,更经济结构更简单。由于串级由多个单台试验变压器组合而成,可单独升压,避免一台故障整套不能使用的尴尬局面。

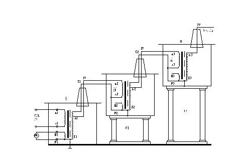
  串级试验变压器的接线如下图:


  当两台试验变压器串级使用时,第一级与第二级试验变压器容量之比是2:1,总容量是第一级容量,总电压是两台试验变的最高输出电压之和,那么输出电流就是总容量与总电压之比。例如:5kVA/50kV与3kVA/50kV两台试验变串级使用时,总容量为5kVA,总电压为100kV,输出电流就是5kVA/100kV也就是50mA。